マンション
新 築
レーベン御宝町アルビオタワー 403
[みかん賃貸ナンバー] 511353


うれしいポイントがたくさんあります。ぜひご検討ください♪人気の洗面所独立付き!身支度などがとても楽です!人気の洗面化粧台付き!身支度などがとても楽です!防犯対策に優れたオートロック付き!湯舟の温め直しが可能な追い焚き給湯機能付き!お料理好きな方におすすめ!コンロの口数3口以上!防犯性に優れたTVモニターインターホン付き!人気のバストイレ別のお部屋です!おすすめポイントが充実、ぜひご検討ください♪
連帯保証人不要。
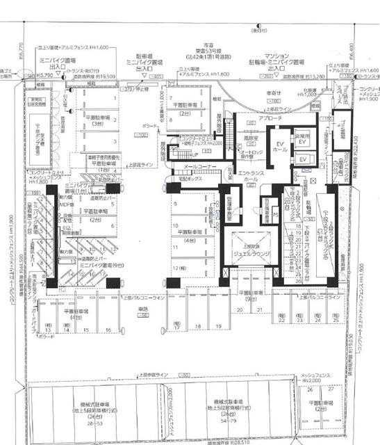
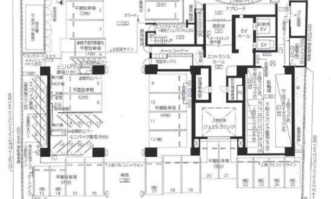
愛媛県松山市御宝町134-1に2026年1月(令和8年1月)新築の賃貸住宅(間取りが3LDK のマンション)、レーベン御宝町アルビオタワー(レーベンミタカラマチアルビオタワー)の403号室です。鉄筋コンクリート造(RC造)19階建ての4階になります。
オートロック、エレベーター、温水洗浄暖房便座、洗髪洗面化粧台(シャンプードレッサー)、追焚、室内洗濯機置き場、システムキッチン、ガスコンロ、TVモニター付きインターホンなどの設備がある部屋となります。

| 賃料/共益費 |
180,000円/なし |
敷金(保証金) |
なし |
礼金 |
180,000円 |
| 所在地/最寄駅 |
〒790-0875 愛媛県松山市御宝町134-1/伊予鉄道横河原線 石手川公園駅 徒歩20分 |
仲介手数料 |
1.0ヶ月 |
| 構造 |
RC造 |
校区(小学校) |
東雲小学校 |
校区(中学校) |
東中学校 |
| 築年数 |
2026年1月 (築2ヶ月) |
間取り |
3 LDK |
階数 |
4階/19階建 |
| 現況 |
建設中 |
専有面積 |
67.27㎡ |
総戸数 |
86戸 |
| 入居可能時期 |
3月下旬(21日~末) |
日当たり |
南 |
火災保険等 |
別途必要 |
| 水道料 |
実費 |
町費 |
実費 |
インターネット料金 |
実費 |
| 退去時清掃代 |
要確認 |
鍵交換費 |
要確認 |
ペット保証金 |
- |
| 間取詳細 |
LDK13.1 洋6 洋5.5 洋5 |
敷引金 |
|
| 駐車場 |
なし |
| 特記事項 |
B-PLUS会費:(39,800 円/初期時)、家賃保証料:(2,200 円/月)、振替料:(330 円/月)、更新料:(要確認) |
| 備考 |
【保証会社保証料: 初回保証料不要・月額2,200円(税込)】 |




| コンビニ |
セブンイレブン松山勝山町1丁目 |
152m |
コンビニ |
ローソン勝山通り |
188m |
| 駅 |
勝山町駅 |
189m |
コンビニ |
ファミリーマート松山勝山通 |
220m |
| コンビニ |
ローソン勝山二丁目 |
292m |
コンビニ |
ファミリーマート松山二番町店 |
315m |
| コンビニ |
ローソン松山築山町 |
345m |
コンビニ |
ローソン松山持田 |
354m |
| コンビニ |
セブンイレブン築山町 |
381m |
コンビニ |
セブンイレブン松山三番町1丁目 |
393m |
| コンビニ |
セブンイレブン松山一番町1丁目 |
397m |
駅 |
警察署前駅 |
401m |
| 保育園 |
八雲保育園 |
403m |
コンビニ |
ローソン松山八坂通 |
451m |
| コンビニ |
ローソン松山三番町一丁目 |
473m |
幼稚園 |
持田幼稚園 |
475m |
| 幼稚園 |
さくら幼稚園 |
486m |
コンビニ |
ローソン松山三番町二丁目 |
531m |
| コンビニ |
ローソン大街道バスターミナル |
535m |
幼稚園 |
愛媛幼稚園 |
557m |
| 駅 |
大街道駅(東) |
575m |
コンビニ |
セブンイレブン松山城ロープウェイ街 |
593m |
| コンビニ |
セブンイレブン2丁目 |
595m |
コンビニ |
セブンイレブン松山大街道2丁目 |
596m |
| ドラッグストアー |
パワードラッグワンズ大街道店 |
606m |
保育園 |
東雲保育園 |
610m |
| 駅 |
大街道駅(西) |
622m |
スーパー |
スーパーABC上一万店 |
623m |
| 駅 |
上一万駅 |
644m |
コンビニ |
ローソン松山大街道二丁目 |
647m |
| コンビニ |
セブンイレブン松山千舟町2丁目 |
659m |
コンビニ |
セブンイレブン松山大街道1丁目 |
703m |
| コンビニ |
ファミリーマート松山二番町3丁目店 |
711m |
ドラッグストアー |
マツモトキヨシ 松山大街道店 |
723m |
| 駅 |
平和通一丁目駅 |
773m |
幼稚園 |
親愛幼稚園 |
784m |
| 駅 |
南町駅 |
792m |
コンビニ |
セブンイレブン松山平和通1丁目 |
796m |
| コンビニ |
セブンイレブン |
800m |
コンビニ |
ファミリーマート二番町3丁目店 |
812m |
| コンビニ |
ファミリーマート愛媛県庁前店 |
812m |
コンビニ |
セブンイレブン松山湯渡町 |
817m |
| スーパー |
マルナカ小坂店 |
830m |
コンビニ |
ローソン平和通り二丁目 |
833m |
| スーパー |
スーパーABC道後南店 |
837m |
駅 |
赤十字病院前駅(東) |
860m |
| コンビニ |
ローソン松山河原町 |
864m |
駅 |
赤十字病院前駅(西) |
865m |
| コンビニ |
ファミリーマート岩崎2丁目店 |
868m |
コンビニ |
セブンイレブン松山中央郵便局前 |
869m |
| コンビニ |
ファミリーマート松山銀天街店 |
876m |
コンビニ |
ローソン松山赤十字病院 |
895m |
| 駅 |
県庁前駅 |
937m |
100円ショップ(100均) |
Seria(セリア)GET松山 |
946m |
| コンビニ |
ファミリーマート河原町店 |
947m |
スーパー |
フレッシュバリュー銀天街店 |
952m |
| コンビニ |
セブンイレブン松山小坂2丁目 |
966m |
コンビニ |
ローソン松山湊町三丁目 |
1002m |
| ドラッグストアー |
くすりのレデイ湊町 |
1005m |
コンビニ |
ファミリーマート松山平和通り店 |
1020m |

| エレベーター、都市ガス、24時間電話受付、オートロック、バイク置き場、駐輪場、温水洗浄便座(シャワートイレ)、洗髪洗面化粧台(シャンプードレッサー)、追焚、システムキッチン、ガスコンロ、コンロ2口以上、クローゼット、シューズボックス、室内洗濯機置場、エアコン、モニター付インターホン、バルコニー、暖房便座、保証人不要、南向き、2階以上、全室フローリング、バス・トイレ別 |
下記の項目にご記入いただき、「送信する」をクリックしてください。
※すべての項目をご記入ください。
※メール送信後に、自動返信メールが届かない場合は、メールアドレスをご確認の上、お手数ですが再度お問い合わせを行ってください。




松山店 TEL:089-905-7676 松山市西石井4-2-2 営業時間 10:00~18:00
今治店 TEL:0898-35-3122 今治市馬越町3-3-11 営業時間 10:00~18:00



ページの先頭へ