アパート
レオパレスフローラ湯築 204
[みかん賃貸ナンバー] 16809


家具・家電付きのレオパレス21物件です。
テレビ・冷蔵庫・洗濯機・電子レンジ・電気コンロ・テーブル・カーテンなどが揃っているので身軽にご入居が可能で意外と高くついてしまう引越費用も軽減できます。
お部屋を借りられる期間が決まっている学生さんや転勤の多い社会人の方にオススメです。
また、成人の方は原則、連帯保証人不要でご契約が可能です。
もちろん仲介手数料は不要です。
各種キャンペーンや交渉によりさらにリーズナブルにご入居できる場合がありますのでお気軽にご相談下さい。
連帯保証人不要。仲介手数料不要。
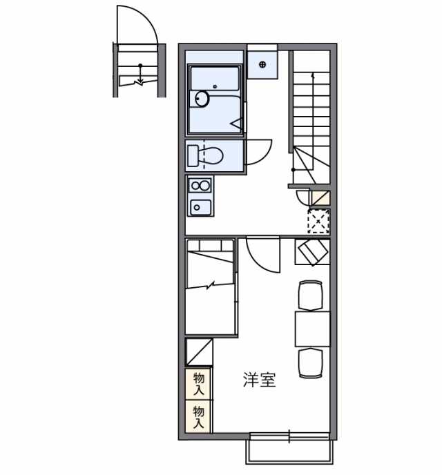
愛媛県松山市祝谷2丁目6-23に2003年6月(平成15年6月)新築の賃貸住宅(間取りが1K のアパート)、レオパレスフローラ湯築の204号室です。木造(W造)2階建ての最上階2階になります。
浴室乾燥機、室内洗濯機置き場、システムキッチン、照明器具などの設備がある部屋となります。

| 賃料/共益費 |
30,000円/4,500円 |
敷金(保証金) |
なし |
礼金 |
1.0ヶ月 |
| 所在地/最寄駅 |
〒790-0833 愛媛県松山市祝谷2丁目6-23/伊予鉄道市駅線 道後温泉駅 徒歩11分 |
仲介手数料 |
なし |
| 構造 |
木造 |
校区(小学校) |
湯築小学校 |
校区(中学校) |
道後中学校 |
| 築年数 |
2003年6月 (築22年5ヶ月) |
間取り |
1 K |
階数 |
2階/2階建 |
| 現況 |
空室 |
専有面積 |
26.08㎡ |
総戸数 |
20戸 |
| 入居可能時期 |
11月上旬(1日~10日) |
日当たり |
西 |
火災保険等 |
別途必要 |
| 水道料 |
実費 |
町費 |
実費 |
インターネット料金 |
3,630 円 |
| 退去時清掃代 |
41,800 円 |
鍵交換費 |
16,500 円 |
ペット保証金 |
- |
| 間取詳細 |
|
敷引金 |
|
| 駐車場 |
有り (5,500円) |
| 特記事項 |
環境維持費:(550 円/月)、抗菌施工:(18,040 円/初期時)、入居者サポート(2年毎):(18,975 円/初期時)、更新料:(16,500 円) |
| 備考 |
個人契約の場合には株式会社レオパレス21の指定する家賃保証会社との保証委託契約(保証委託料として初回に月額総利用料×100%~120%※と1年毎に10,000円)が必要です。 ※成人で年収が150万円以上の方:100%(保証人不要) 成人で年収が150万円未満の方:120%(保証人不要) 未成年の方:100%(保証人必要) |




| コンビニ |
ファミリーマート祝谷店 |
240m |
コンビニ |
ローソン松山祝谷 |
282m |
| コンビニ |
セブンイレブン松山祝谷4丁目 |
298m |
ドラッグストアー |
くすりのレデイ道後緑台 |
397m |
| コンビニ |
ファミリーマート道後北代店 |
403m |
幼稚園 |
道後聖母幼稚園 |
415m |
| コンビニ |
セブンイレブン松山道後今市 |
499m |
コンビニ |
セブンイレブン松山道後喜多町 |
560m |
| スーパー |
業務スーパー道後店 |
617m |
コンビニ |
ファミリーマート道後湯之町店 |
638m |
| コンビニ |
ローソン道後ハイカラ通 |
774m |
コンビニ |
ローソン松山道後樋又 |
783m |
| コンビニ |
セブンイレブン松山大学前 |
827m |
コンビニ |
ローソン松山道後駅前 |
851m |
| 駅 |
道後温泉駅 |
857m |
コンビニ |
ローソン松山赤十字病院 |
884m |
| 駅 |
南町駅 |
903m |
駅 |
平和通一丁目駅 |
918m |
| 駅 |
赤十字病院前駅(東) |
930m |
駅 |
赤十字病院前駅(西) |
941m |
| スーパー |
フジ道後店 |
985m |
駅 |
上一万駅 |
1000m |
| スーパー |
スーパーABC上一万店 |
1014m |
駅 |
道後公園駅 |
1018m |
| コンビニ |
セブンイレブン松山平和通1丁目 |
1022m |
コンビニ |
ローソン平和通り二丁目 |
1054m |
| 保育園 |
東雲保育園 |
1068m |
駅 |
鉄砲町駅 |
1138m |
| コンビニ |
ローソン松山清水町三丁目 |
1184m |
保育園 |
道後保育園 |
1206m |
| コンビニ |
ファミリーマート岩崎2丁目店 |
1208m |
コンビニ |
ファミリーマート松山平和通り店 |
1223m |
| 駅 |
警察署前駅 |
1250m |
保育園 |
えひめ乳児保育園 |
1256m |
| コンビニ |
ローソン松山持田 |
1284m |
幼稚園 |
持田幼稚園 |
1298m |
| 幼稚園 |
花園幼稚園 |
1324m |
駅 |
清水町駅(東) |
1376m |
| コンビニ |
ローソン勝山二丁目 |
1382m |
駅 |
清水町駅(西) |
1397m |
| コンビニ |
セブンイレブン松山清水町1丁目 |
1460m |
駅 |
高砂町駅 |
1491m |
| 幼稚園 |
コイノニア幼稚園 |
1500m |
保育園 |
リベカ清水保育園 |
1500m |
| スーパー |
スーパー日東高砂店 |
1523m |
駅 |
勝山町駅 |
1542m |
| コンビニ |
セブンイレブン松山勝山町1丁目 |
1553m |
コンビニ |
セブンイレブン松山城ロープウェイ街 |
1561m |
| スーパー |
スーパーABC道後南店 |
1600m |
幼稚園 |
勝山幼稚園 |
1616m |
| 駅 |
木屋町駅 |
1619m |
コンビニ |
ローソン大街道バスターミナル |
1678m |
| 幼稚園 |
石手幼稚園 |
1678m |
コンビニ |
セブンイレブン松山一番町1丁目 |
1696m |
| コンビニ |
ファミリーマート松山平和通5丁目店 |
1699m |
駅 |
大街道駅(東) |
1722m |
| 保育園 |
八雲保育園 |
1724m |
駅 |
大街道駅(西) |
1737m |
| 保育園 |
愛媛保育園 |
1749m |
スーパー |
フジ本町店 |
1757m |

| 専用ゴミ置き場、光ファイバー、24時間電話受付、浴室乾燥機、システムキッチン、電気コンロ、コンロ2口以上、クローゼット、シューズボックス、室内洗濯機置場、照明器具、冷蔵庫、電子レンジ、テレビ、洗濯機、ベッド、机、イス、カーテン、エアコン、カードキー、最上階、保証人不要、2階以上、クッションフロアー、バス・トイレ別、家具・家電付き |
下記の項目にご記入いただき、「送信する」をクリックしてください。
※すべての項目をご記入ください。
※メール送信後に、自動返信メールが届かない場合は、メールアドレスをご確認の上、お手数ですが再度お問い合わせを行ってください。




松山店 TEL:089-905-7676 松山市西石井4-2-2 営業時間 10:00~18:00
今治店 TEL:0898-35-3122 今治市馬越町3-3-11 営業時間 10:00~18:00



ページの先頭へ