アパート
レオパレスフォーサイト 松山 112
[みかん賃貸ナンバー] 15352


家具・家電付きのレオパレス21物件です。
テレビ・冷蔵庫・洗濯機・電子レンジ・電気コンロ・テーブル・カーテンなどが揃っているので身軽にご入居が可能で意外と高くついてしまう引越費用も軽減できます。
お部屋を借りられる期間が決まっている学生さんや転勤の多い社会人の方にオススメです。
また、成人の方は原則、連帯保証人不要でご契約が可能です。
もちろん仲介手数料は不要です。
各種キャンペーンや交渉によりさらにリーズナブルにご入居できる場合がありますのでお気軽にご相談下さい。
連帯保証人不要。仲介手数料不要。
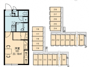
愛媛県松山市余戸東5丁目12-40に2005年7月(平成17年7月)新築の賃貸住宅(間取りが1K のアパート)、レオパレスフォーサイト 松山の112号室です。木造(W造)2階建ての最下階1階になります。
浴室乾燥機、室内洗濯機置き場、システムキッチン、照明器具、TVモニター付きインターホンなどの設備がある部屋となります。

| 賃料/共益費 |
40,000円/4,500円 |
敷金(保証金) |
なし |
礼金 |
1.0ヶ月 |
| 所在地/最寄駅 |
〒790-0044 愛媛県松山市余戸東5丁目12-40/伊予鉄道郡中線 余戸駅 徒歩10分 |
仲介手数料 |
なし |
| 構造 |
木造 |
校区(小学校) |
余土小学校 |
校区(中学校) |
余土中学校 |
| 築年数 |
2005年7月 (築20年5ヶ月) |
間取り |
1 K |
階数 |
1階/2階建 |
| 現況 |
空室 |
専有面積 |
23.18㎡ |
総戸数 |
36戸 |
| 入居可能時期 |
12月上旬(1日~10日) |
日当たり |
東 |
火災保険等 |
別途必要 |
| 水道料 |
実費 |
町費 |
実費 |
インターネット料金 |
3,630 円 |
| 退去時清掃代 |
41,800 円 |
鍵交換費 |
16,500 円 |
ペット保証金 |
- |
| 間取詳細 |
|
敷引金 |
|
| 駐車場 |
有り (4,400円) |
| 特記事項 |
環境維持費:(550 円/月)、抗菌施工:(18,040 円/初期時)、入居者サポート(2年毎):(18,975 円/初期時)、更新料:(16,500 円) |
| 備考 |
個人契約の場合には株式会社レオパレス21の指定する家賃保証会社との保証委託契約(保証委託料として初回に月額総利用料×100%~120%※と1年毎に10,000円)が必要です。 ※成人で年収が150万円以上の方:100%(保証人不要) 成人で年収が150万円未満の方:120%(保証人不要) 未成年の方:100%(保証人必要) |





| スーパー |
マルヨシセンター余戸店 |
298m |
保育園 |
余土保育園 |
345m |
| コンビニ |
ローソン松山余戸東五丁目 |
358m |
コンビニ |
セブンイレブン松山保免西1丁目 |
364m |
| コンビニ |
ファミリーマート松山保免西店 |
368m |
幼稚園 |
勝愛幼稚園 |
473m |
| スーパー |
フジZY余戸店 |
475m |
100円ショップ(100均) |
シルク余戸 |
486m |
| 保育園 |
勝愛風の子保育園 |
541m |
スーパー |
松山生協余土店 |
608m |
| 保育園 |
のぞみ保育園 |
634m |
駅 |
余戸駅 |
661m |
| スーパー |
松山生協西雄郡店 |
681m |
コンビニ |
ローソン松山保免中 |
713m |
| 駅 |
土居田駅 |
785m |
コンビニ |
セブンイレブン保免中2丁目 |
807m |
| 保育園 |
富久保育園 |
840m |
コンビニ |
ファミリーマート松山針田店 |
853m |
| コンビニ |
ファミリーマート松山土居田駅前店 |
873m |
コンビニ |
ファミリーマート松山土居田東店 |
882m |
| 保育園 |
ジャックと豆の木園 余戸園 |
909m |
駅 |
市坪駅 |
1221m |
| 駅 |
鎌田駅 |
1256m |
コンビニ |
セブンイレブン松山土居田町 |
1267m |
| スーパー |
マルナカ土居田店 |
1299m |
ドラッグストアー |
くすりのレデイ余戸 |
1300m |
| スーパー |
コープ余戸 |
1316m |
コンビニ |
ファミリーマート松山生協西余戸店 |
1322m |
| コンビニ |
ファミリーマート松山余戸店 |
1343m |
コンビニ |
ローソン松山空港通五丁目 |
1349m |
| コンビニ |
セブンイレブン松山土居田西 |
1354m |
幼稚園 |
済美幼稚園 |
1361m |
| コンビニ |
セブンイレブン松山空港通6丁目 |
1388m |
コンビニ |
ファミリーマート余戸南4丁目店 |
1389m |
| コンビニ |
ローソン松山空港通一丁目 |
1438m |
コンビニ |
ファミリーマート松山フライブルク通り店 |
1472m |
| ドラッグストアー |
スーパードラッグひまわり空港通店 |
1562m |
コンビニ |
セブンイレブン松山富久町 |
1574m |
| 保育園 |
ふたば保育園 |
1581m |
スーパー |
業務スーパー松山和泉店 |
1583m |
| 保育園 |
ひよこ保育園 |
1637m |
コンビニ |
ファミリーマート南斎院町店 |
1675m |
| ドラッグストアー |
くすりのレデイ高岡 |
1688m |
コンビニ |
ファミリーマート松山余戸南6丁目店 |
1726m |
| スーパー |
マルナカ和泉店 |
1743m |
コンビニ |
ファミリーマート松山高岡店 |
1746m |
| コンビニ |
ファミリーマート松山竹原店 |
1762m |
幼稚園 |
番町幼稚園 |
1785m |
| コンビニ |
ファミリーマート松山小栗6丁目店 |
1798m |
100円ショップ(100均) |
シルク松山椿 |
1812m |
| コンビニ |
ファミリーマート松山古川西店 |
1823m |
スーパー |
松山生協斎院店 |
1834m |
| 幼稚園 |
椿幼稚園 |
1851m |
保育園 |
はなみずき保育園 |
1855m |
| コンビニ |
ファミリーマート高岡町店 |
1855m |
コンビニ |
ファミリーマート松山竹原3丁目店 |
1884m |
| スーパー |
サニーTSUBAKI椿店 |
1890m |
ドラッグストアー |
スーパードラッグひまわり高岡店 |
1900m |
| コンビニ |
セブンイレブン松山古川北1丁目 |
1924m |
ドラッグストアー |
くすりのレデイ古川 |
1947m |

| プロパンガス、専用ゴミ置き場、光ファイバー、24時間電話受付、バイク置き場、駐輪場、浴室乾燥機、システムキッチン、電気コンロ、コンロ2口以上、クローゼット、シューズボックス、室内洗濯機置場、照明器具、冷蔵庫、電子レンジ、テレビ、洗濯機、ベッド、机、イス、カーテン、エアコン、モニター付インターホン、カードキー、1階、最下階、保証人不要、全室フローリング、バス・トイレ別、家具・家電付き |
下記の項目にご記入いただき、「送信する」をクリックしてください。
※すべての項目をご記入ください。
※メール送信後に、自動返信メールが届かない場合は、メールアドレスをご確認の上、お手数ですが再度お問い合わせを行ってください。




松山店 TEL:089-905-7676 松山市西石井4-2-2 営業時間 10:00~18:00
今治店 TEL:0898-35-3122 今治市馬越町3-3-11 営業時間 10:00~18:00



ページの先頭へ