マンション
Natorium 201
[みかん賃貸ナンバー] 22270


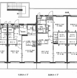
愛媛県今治市南鳥生町1丁目1-11に2013年9月(平成25年9月)新築の賃貸住宅(間取りが1LDK のマンション)、Natorium(ナトリウム)の201号室です。鉄筋コンクリート造(RC造)3階建ての2階角部屋になります。
温水洗浄暖房便座、洗髪洗面化粧台(シャンプードレッサー)、一坪バス、浴室乾燥機、追焚、室内洗濯機置き場、カウンターキッチン、システムキッチン、TVモニター付きインターホンなどの設備がある部屋となります。

| 賃料/共益費 |
52,000円/4,000円 |
敷金(保証金) |
2.0ヶ月 |
礼金 |
なし |
| 所在地/最寄駅 |
〒794-0802 愛媛県今治市南鳥生町1丁目1-11/JR予讃線 今治駅 徒歩26分 |
仲介手数料 |
1.0ヶ月 |
| 構造 |
RC造 |
校区(小学校) |
鳥生小学校 |
校区(中学校) |
立花中学校 |
| 築年数 |
2013年9月 (築12年7ヶ月) |
間取り |
1 LDK |
階数 |
2階/3階建 |
| 現況 |
退居予定 |
専有面積 |
43.03㎡ |
総戸数 |
18戸 |
| 入居可能時期 |
2026年5月 |
日当たり |
|
火災保険等 |
別途必要 |
| 水道料 |
実費 |
町費 |
実費 |
インターネット料金 |
実費 |
| 退去時清掃代 |
別途必要 |
鍵交換費 |
不要 |
ペット保証金 |
- |
| 間取詳細 |
LDK9.56 洋6.1 |
敷引金 |
|
| 駐車場 |
有り (3,000円) |
| 特記事項 |
更新料:(15,000 円) |
| 備考 |
保証会社料・初回保証委託料、月額支払金額100%
※写真や図と実際の現状とが異なる場合は現状を優先させていただきます。 |




客室・リビング


その他部屋・スペース


キッチン


バス


トイレ


洗面所


収納


バルコニー


玄関


セキュリティ


洗濯機置き場


その他設備



| スーパー |
業務スーパー今治店 |
112m |
コンビニ |
ファミリーマート今治東鳥生店 |
132m |
| ドラッグストアー |
ドラッグストアモリ今治店 |
369m |
コンビニ |
ローソン今治南鳥生 |
422m |
| 保育園 |
城東保育所 |
464m |
ドラッグストアー |
くすりのレデイ鳥生 |
541m |
| 100円ショップ(100均) |
ザダイソーフジグラン今治 |
563m |
保育園 |
鳥生保育所 |
610m |
| ドラッグストアー |
メディコ21 |
622m |
ショッピングセンター |
フジグラン今治 |
639m |
| コンビニ |
ローソン今治美須賀町 |
653m |
スーパー |
フジグラン今治 |
729m |
| 幼稚園 |
晴心幼稚園 |
753m |
スーパー |
フレッシュバリュー今治城東店 |
776m |
| スーパー |
マルナカ今治松本店 |
782m |
ドラッグストアー |
くすりのレデイ南鳥生 |
854m |
| コンビニ |
セブンイレブン今治北鳥生店 |
902m |
コンビニ |
セブンイレブン今治北鳥生町4丁目 |
905m |
| スーパー |
コープ今治 |
926m |
コンビニ |
ローソン今治土橋 |
930m |
| ドラッグストアー |
コスモス喜田村 |
990m |
ドラッグストアー |
ダイレックス今治店 |
1017m |
| 100円ショップ(100均) |
meets.(ミーツ)今治ハローズ |
1057m |
スーパー |
ハローズ今治 |
1089m |
| ドラッグストアー |
くすりのレデイ今治衣干 |
1127m |
コンビニ |
ファミリーマート今治南宝来町店 |
1190m |
| コンビニ |
ファミリーマート今治城前店 |
1231m |
ドラッグストアー |
くすりのレデイ今治中央 |
1255m |
| 保育園 |
立花保育所 |
1373m |
ドラッグストアー |
コスモス黄金 |
1420m |
| ドラッグストアー |
くすりのレデイ喜田村 |
1427m |
コンビニ |
セブンイレブン今治蔵敷町1丁目 |
1429m |
| コンビニ |
ファミリーマート今治上徳1丁目店 |
1448m |
コンビニ |
ローソン今治喜田村五丁目 |
1480m |
| コンビニ |
ローソン今治南宝来町一丁目 |
1490m |
幼稚園 |
立花幼稚園 |
1500m |
| ドラッグストアー |
くすりのレディ南宝来店 |
1511m |
保育園 |
今治中央乳児保育所 |
1660m |
| 幼稚園 |
今治めぐみ幼稚園 |
1700m |
コンビニ |
ファミリーマート今治たちばな店 |
1703m |
| スーパー |
マルナカ今治駅前店 |
1782m |
ドラッグストアー |
くすりのレデイ栄町 |
1806m |
| コンビニ |
ローソン今治市役所前 |
1818m |
幼稚園 |
今治若葉幼稚園 |
1870m |
| 保育園 |
常盤保育所 |
1901m |
100円ショップ(100均) |
シルク今治 |
1906m |
| ショッピングセンター |
今治ワールドプラザ |
1953m |
コンビニ |
ローソン今治郷新屋敷町 |
1976m |
| コンビニ |
セブンイレブン今治郷六ヶ内町2丁目 |
1997m |
コンビニ |
ファミリーマート今治別宮町店 |
2013m |
| スーパー |
セブンスター今治店 |
2049m |
コンビニ |
ファミリーマート今治郷本町店 |
2059m |
| コンビニ |
セブンイレブンKiosk今治駅 |
2064m |
保育園 |
若葉保育園 |
2065m |
| 駅 |
今治駅(北) |
2080m |
幼稚園 |
今治幼稚園 |
2090m |
| 駅 |
今治駅(南) |
2095m |
幼稚園 |
今治精華幼稚園 |
2097m |
| コンビニ |
ローソン今治駅前 |
2152m |
スーパー |
ライフショップ常盤店 |
2190m |

| 専用ゴミ置き場、バイク置き場、駐輪場、温水洗浄便座(シャワートイレ)、オートバス(自動湯張り)、洗髪洗面化粧台(シャンプードレッサー)、追焚、浴室乾燥機、バス1坪以上、システムキッチン、カウンターキッチン、シングルレバー、コンロ2口以上、クローゼット、シューズボックス、室内洗濯機置場、エアコン、床暖房、BSアンテナ、モニター付インターホン、バルコニー、角部屋、暖房便座、2階以上、全室フローリング、バス・トイレ別 |
下記の項目にご記入いただき、「送信する」をクリックしてください。
※すべての項目をご記入ください。
※メール送信後に、自動返信メールが届かない場合は、メールアドレスをご確認の上、お手数ですが再度お問い合わせを行ってください。




松山店 TEL:089-905-7676 松山市西石井4-2-2 営業時間 10:00~18:00
今治店 TEL:0898-35-3122 今治市馬越町3-3-11 営業時間 10:00~18:00



ページの先頭へ