アパート
レオパレス川之江中央
[みかん賃貸ナンバー] 18134
このお部屋は現在、みかん不動産では賃貸入居様の募集及びご契約の受付をしておりません。
同じマンション・アパート内で他のお部屋を募集している場合は、当ページ下部に「募集中の他部屋」としてリンクを掲載しています。
| 賃料/共益費 |
募集対象外 |
敷金(保証金) |
なし |
礼金 |
1.0ヶ月 |
| 所在地/最寄駅 |
〒799-0113 愛媛県四国中央市妻鳥町21/JR予讃線 川之江駅 徒歩25分 |
仲介手数料 |
なし |
| 構造 |
木造 |
校区(小学校) |
|
校区(中学校) |
|
| 築年数 |
2007年10月 (築18年2ヶ月) |
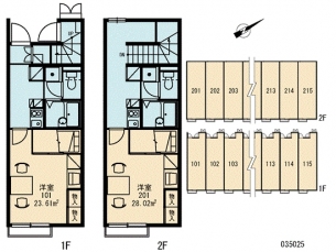
間取り |
1 K |
階数 |
1階/2階建 |
| 現況 |
募集対象外 |
専有面積 |
23.61㎡ |
総戸数 |
32戸 |
| 入居可能時期 |
未定 |
日当たり |
南東 |
火災保険等 |
別途必要 |
| 水道料 |
実費 |
町費 |
実費 |
インターネット料金 |
3,630 円 |
| 退去時清掃代 |
41,800 円 |
鍵交換費 |
16,500 円 |
ペット保証金 |
- |
| 駐車場 |
有り (3,850円) |
敷引金 |
|
| 特記事項 |
環境維持費:(550 円/月)、抗菌施工:(18,040 円/初期時)、入居者サポート(2年毎):(18,975 円/初期時)、更新料:(16,500 円) |
| 備考 |
個人契約の場合には株式会社レオパレス21の指定する家賃保証会社との保証委託契約(保証委託料として初回に月額総利用料×100%~120%※と1年毎に10,000円)が必要です。 ※成人で年収が150万円以上の方:100%(保証人不要) 成人で年収が150万円未満の方:120%(保証人不要) 未成年の方:100%(保証人必要) |




| スーパー |
ハローズ川之江 |
626m |
ドラッグストアー |
コスモス四国中央 |
629m |
| 100円ショップ(100均) |
Seria(セリア)ハローズ川之江モール |
698m |
コンビニ |
ローソン四国中央川之江町 |
1069m |
| スーパー |
マルナカ川之江店 |
1103m |
コンビニ |
ローソン四国中央妻鳥町 |
1381m |
| コンビニ |
ローソン四国中央金生町下分 |
1413m |
コンビニ |
ローソン四国中央下柏町 |
1560m |
| スーパー |
フジ川之江店 |
1581m |
ドラッグストアー |
くすりのレデイ川之江 |
1598m |
| ドラッグストアー |
くすりのレデイ四国中央 |
1614m |
ドラッグストアー |
くすりのレデイ グラン川之江 |
1656m |
| スーパー |
フジグラン川之江 |
1741m |
ドラッグストアー |
コスモス川之江 |
1752m |
| コンビニ |
ファミリーマート川之江大門店 |
1886m |
駅 |
川之江駅 |
1902m |
| コンビニ |
ローソン四国中央川之江港通 |
1939m |
コンビニ |
ファミリーマート四国中央大柏店 |
2030m |
| ドラッグストアー |
コスモス三島宮川 |
2137m |
スーパー |
フレッシュバリュー上分店 |
2247m |
| コンビニ |
ローソン四国中央中曽根町 |
2419m |
スーパー |
フレッシュバリュー川之江店 |
2481m |
| スーパー |
ハローズ三島 |
2593m |
100円ショップ(100均) |
meets.(ミーツ)三島ハローズ |
2629m |
| スーパー |
フレッシュバリュー三島店 |
2780m |
スーパー |
フジ三島店 |
2877m |
| ドラッグストアー |
くすりのレデイ三島 |
2893m |
駅 |
伊予三島駅(北) |
3089m |
| 駅 |
伊予三島駅(南) |
3115m |
コンビニ |
ローソン四国中央金生町山田井 |
3172m |
| コンビニ |
ローソン四国中央三島病院前 |
3659m |
コンビニ |
ローソン 四国中央金田町 |
3761m |
| コンビニ |
ファミリーマート中之庄バイパス店 |
4041m |
スーパー |
フレッシュバリュー中ノ庄店 |
4424m |
| スーパー |
マルナカ三島店 |
4677m |
|
|
|

| 専用ゴミ置き場、24時間電話受付、駐輪場、温水洗浄便座(シャワートイレ)、浴室乾燥機、システムキッチン、電気コンロ、コンロ2口以上、クローゼット、シューズボックス、室内洗濯機置場、照明器具、冷蔵庫、電子レンジ、テレビ、洗濯機、ベッド、机、イス、カーテン、エアコン、モニター付インターホン、カードキー、防犯用ガラス、暖房便座、1階、最下階、保証人不要、全室フローリング、バス・トイレ別、家具・家電付き |
下記の項目にご記入いただき、「送信する」をクリックしてください。
※すべての項目をご記入ください。
※メール送信後に、自動返信メールが届かない場合は、メールアドレスをご確認の上、お手数ですが再度お問い合わせを行ってください。




松山店 TEL:089-905-7676 松山市西石井4-2-2 営業時間 10:00~18:00
今治店 TEL:0898-35-3122 今治市馬越町3-3-11 営業時間 10:00~18:00



ページの先頭へ