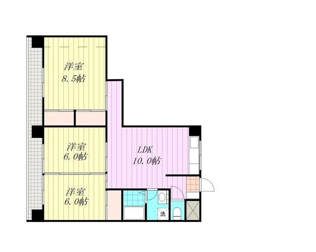
間取り

 58,000円

601号  【3LDK】

入居:

詳細はこちら